Erneuerung Effingerstrasse 89, 2024
Beschrieb
Für die fünfgeschossigen Mehrfamilienhäuser (Nr.89/91/93 und 99/101) mit je 20 respektive je 15 Wohnungen wurde anfangs eine Zustandsanalyse und daraus folgend ein Unterhaltskonzept erarbeitet.
Etappenweise wurden im bewohnten Zustand diverse Unterhaltsarbeiten, die Sanierung der Fassaden sowie die Sanierung des Tiefparterres einer Liegenschaft umgesetzt.
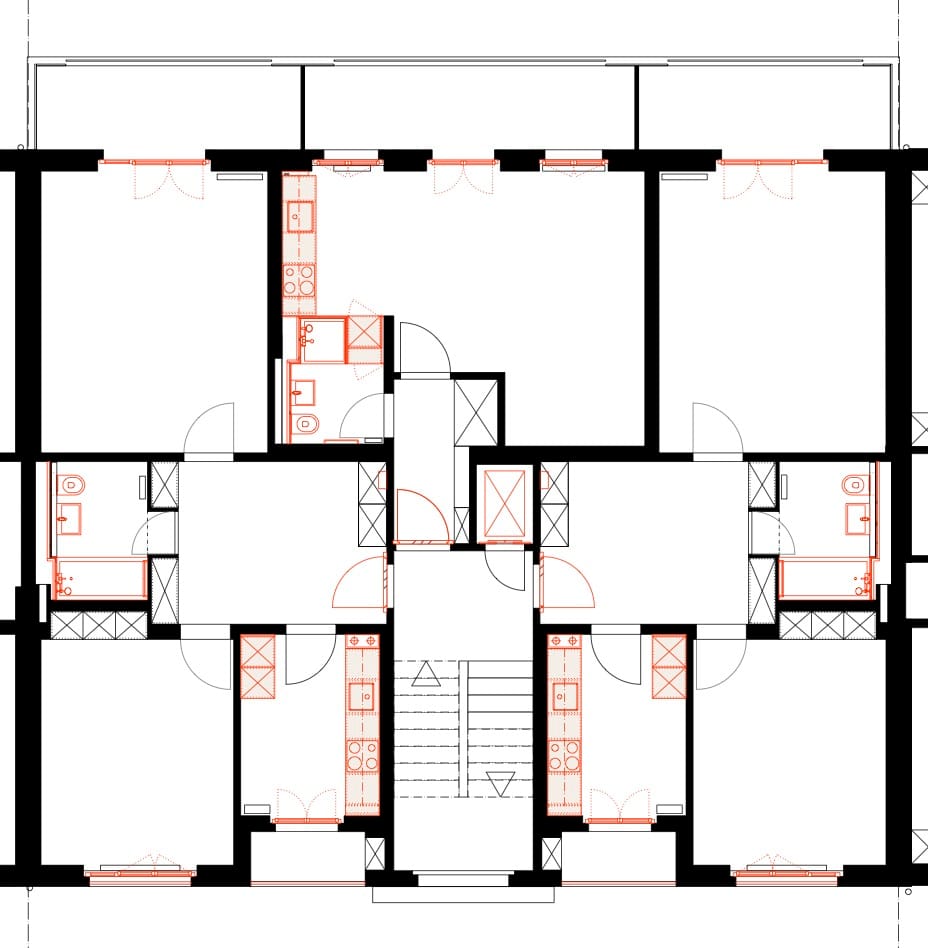
Im letzten Jahr wurde nun das Haus Nr. 89 erneuert. Dabei wurden die Haustechnikinstallationen erneuert, eine Komfortlüftung ergänzt und im Zuge davon die Küchen und die Bäder erneuert. In den Regelgeschossen wurden die Grundrisse nur geringfügig angepasst, im Mansardengeschoss wurden die kleinteiligen Nutzungseinheiten zu zwei grosszügigen Wohnungen zusammengefasst. Bereits bei Beginn wurde der Leitsatz festgehalten, dass die bestehenden Qualitäten beibehalten und gestärkt werden, vorhandene Bauteile soweit möglich belassen oder sorgfältig in die Erneuerung integriert werden.
Die Umbauarbeiten erfolgten im Leerstand und konnten damit zeitlich sehr kompakt gehalten werden. Die Eigentümerschaft hat in enger Zusammenarbeit mit der Verwaltung und den Architekten die Bewohnenden früh in den Planungsprozess miteinbezogen und bei Bedarf für die Überbrückung der Bauzeit Übergangslösungen gesucht. Nach Beendigung der Arbeiten sind nun einige der Bewohnenden wieder zurückgekehrt.
Details
Bauherr / Auftraggeber:
privat
Adresse:
Effingerstrasse 89, 3008 Bern
Auftragsart:
Direktauftrag
Termine:
2022 – 2024
Anlagekosten:
CHF 3.1 Mio.






